Estudio de patología y evaluación estructural en dos edificios de viviendas
Análisis de la estabilidad geotecnicoestructural en dos edificaciones de estructura de hormigón armado afectadas por asientos diferenciales
El analisis de la estabilidad geotecnicoestructural en estructuras de edificacion mediante la determinacion de tensiones verticales medias en el plano de apoyo de la cimentacion lleva consigo la realización de una serie de pasos, que se indican en la figura 1. Se ha elegido un caso de edificios altos, en el que uno de los mismos, ya construido desde hacía varias décadas, se inclinó progresivamente durante la construcción de otro colindante, hasta apoyarse entre ellos, por asientos diferenciales. Están ubicados en la calle de Celestino Junquera, números 7 y 9, respectivamente, en Gijón, Asturias. La pérdida de verticalidad del edificio del número 7 se aprecia a simple vista por variaciones de distancia entre sus bordes superiores e inferiores (foto 1).
A pesar de que el caso que se muestra está integrado fundamentalmente en el campo de la patología geotécnica –por que la causa principal del origen del problema que trata está relacionado con el comportamiento del suelo–, se verá en el desarrollo del mismo la relevancia que tienen los daños estructurales derivados de los movimientos experimentados por el terreno; de ahí que la denominación más correcta del contenido de este trabajo sea la de patología geotécnicoestructural.
Descripción de los edificios
Para el ubicado en el n.o 7 de la mencionada calle, el proyecto de construcción es del año 1966, consta de 7 plantas más sótano, la planta baja se dedica –en parte– a local comercial, la primera a oficinas y el resto de plantas superiores a viviendas.
Se trata de un bloque de planta en «L», formado por dos partes rectangulares bien diferenciadas. Las mayores dimensiones se corresponden con sendos muros de medianería, mientras que la fachada principal –perpendicular a las anteriores– da a la calle de Celestino Junquera.
La estructura portante está constituida por pórticos de hormigón armado paralelos a la fachada, con dos crujías en los tres primeros vanos y tres crujías en el cuarto y quinto vanos, que dan al patio de manzana (figura 2). Los forjados son de cerámica armada (con un entrevigado de 50 cm), los cerramientos exteriores se resolvieron con fábrica de ladrillo formando cámara aislante, mientras que para la distribución interior se optó por tabique sencillo.
Parte de la planta baja, así como el sótano, se sometieron a un proyecto de adecuación para instalación de garaje en el año 1986.
La cimentación es de tipo superficial, de hormigón ciclópeo, formado por zapatas aisladas y vigas riostras en dirección perpendicular a la fachada (figura 3).
Por su parte, en el edificio ubicado en el n.o 9, el proyecto de construcción es del año 1998, carece de sótano o garaje, la planta baja se dedica a locales comerciales, y el resto de plantas superiores hasta la coronación del mismo a viviendas.
En este caso, la forma en planta del bloque es sensiblemente pentagonal, de lados desiguales. Al igual que en el edificio anterior, las mayores dimensiones se dan en los muros medianeros perpendiculares a la fachada; el pentágono se cierra con otros dos lados perpendiculares entre sí, que dan a un patio interior común a más viviendas.
La estructura portante está constituida por pórticos de hormigón armado paralelos a la fachada, con dos crujías de luces significativamente diferentes (5,85 m del lado del edificio n.o 7 y 3,25 m en el contiguo) y 4 vanos en profundidad hasta el patio de manzana (figura 4). Los forjados son de cerámica armada, con un entrevigado de 70 cm.
Desde la planta 5.a hasta la coronación, el diseño de la estructura del edificio sufre un quiebro en dirección paralela a los muros de medianería, manteniéndose únicamente la crujía de mayor luz (del lado del edificio n.o 7); acortándose el ancho del edificio en igual dimensión.
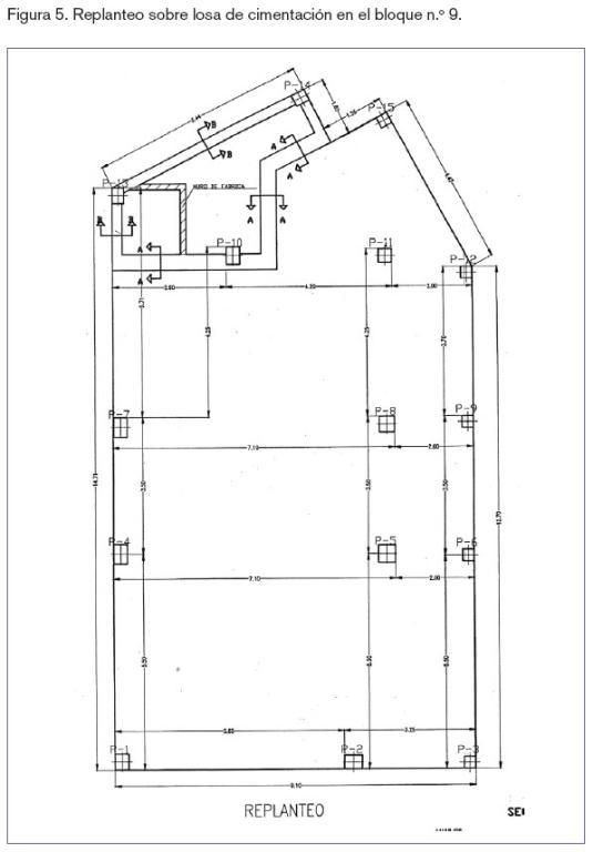
La cimentación es de tipo superficial, resuelta mediante una losa de 70 cm de canto, que cubre la práctica totalidad de la superficie del solar (figuras 5 y 6).
Descripción de los daños observados
En las foto 1 se aprecian las fisuras y grietas manifestadas en el muro de fachada del edifico n.o 7. Su trayectoria es inclinada, más o menos a 45º y parten fundamentalmente de las esquinas de las ventanas, su máxima abertura oscila entre los 4 o 5 mm.
Las fisuras, en algunos casos, alcanzan el frente del forjado de la primera planta y continúan manifestándose hacia el interior en los techos, con trayectoria perpendicular al muro de la fachada.
En las plantas superiores se han apreciado, desde el interior, fisuras con igual trayectoria e inclinación en los huecos de ventana, aunque bastante menos acusadas. Obedecen –en su conjunto con las de planta baja– a los movimientos experimentados por la cimentación del muro colindante con el bloque n.o 9.
En los paramentos divisorios –tabiques– de las viviendas, paralelos al muro de fachada, se han manifestado fisuras con la misma trayectoria e inclinación que las existentes en el citado muro. Entendiéndose su origen relacionado, por tanto, con las del muro.
En la foto 1, se puede apreciar la considerable abertura de la junta de dilatación entre los bloques n.os 5 y 7 –debido al movimiento del n.o 7 hacia el n.o 9– aumentando en espesor desde abajo (1 cm) hacia arriba (varios centímetros).
El movimiento experimentado por el bloque n.o 7 en la dirección del n.o 9 (y sentido del n.o 7 al n.o 9), es el resultado de dos fases bien diferenciadas:
1. Por una parte –y en su fase inicial–, un movimiento monolítico acompañado del inicio de la abertura de la junta de dilatación, sin que en las viviendas se manifestaran grietas ni fisuras.
2. Para, posteriormente, continuar con la deformación de la estructura portante y la aparición de las fisuras y grietas mencionadas.
El asiento y giro ha sido lento y gradual a lo largo del tiempo, con el sentido citado, coincidiendo con la construcción del bloque n.o 9, que tiene su explicación en el asiento diferencial provocado por el aumento de carga en la zona medianera del bloque n.o 7, colindante con el n.o 9, debido a la construcción del no 9 y a una cimentación en el n.o 7 –como se vera– insuficiente.
Información disponible sobre la naturaleza del suelo
La misión de los estudios geológicos y geotécnicos en la edificación puede resumirse en la identificación del terreno, la problemática que éste pueda presentar como elemento de soporte, la estabilidad en las edificaciones y obras de ingeniería civil y la adopción de las posibles soluciones constructivas.
En los expedientes de construcción de ambos bloques, consultados por el autor, tanto en el negociado de licencias, como en el archivo municipal del Ayuntamiento de Gijón, no aparece informe geotécnico alguno. En el caso del edificio n.o 9 –el más reciente– el proyecto del mismo es anterior a la entrada en vigor de la Ley de Ordenación de la Edificación (6 de noviembre de 1999), por lo que su realización no era de obligado cumplimiento. Además, en aquella época el Ayto. de Gijón sólo lo requería –como condición previa para la concesión de licencia municipal– en el caso de que el proyecto incluyese la excavación de dos o más plantas por debajo de la cota del terreno, situación ésta que no se da en el citado bloque.
En todo el proyecto de este último edificio, sólo hay un párrafo que haga referencia al terreno de cimentación: “s/ datos facilitados por la dirección facultativa la tensión admisible del terreno es de 1,5 kp/cm2”. Valor muy bajo, con el que previsiblemente se pretendía curarse en salud ante el riesgo de futuros problemas geotécnicos.
Es llamativo también el hecho de no haber proyectado plantas de garaje en el solar, e incluso del tipo de cimentación utilizado: superficial formado por una gran losa; solución cara y que requiere una cuidadosa ejecución. Quizás la principal justificación en el empleo de la misma es que con ella se obtienen unos asientos –de producirse– más regulares. De esta forma, se resuelve el problema de las grandes diferencias de carga (condicionadas por el diseño) a nivel de cimentación, producidas por el distinto número de plantas a cada lado del quiebro del edificio (ya mencionado en el apartado Descripción de los edificios). Y se evita de esta forma la solución alternativa de separar el bloque n.o 9 en otros dos a través de una junta de asiento, motivada por el cambio en la aplicación e intensidad de las cargas a ambos lados del solar.
A pesar de todo, el emplazamiento de las obras del asunto en una zonación geotécnica determinada permite extraer –entre otra– la información que se cita en los párrafos siguientes.
La zonación geotécnica de una urbe sirve como recapitulación de las características propias de la misma, y en especial de sus áreas de expansión, mediante la confección de un mapa de zonación (figura 7).
Los criterios tenidos en cuenta a la hora de elaborar esta distribución zonal surgen del análisis de problemas tipo de carácter litológico, geomorfológico, hidrogeológico y propiamente geotécnico que plantean las unidades presentes en el subsuelo gijonés a efectos de edificación. A tenor de dichos criterios, pero sin olvidar la posible superposición puntual de dos o más problemas tipo, se han definido una serie de áreas singularizadas por sus condiciones constructivas.
Las zonaciones geotécnicas no pueden sustituir al informe geológico y geotécnico de una determinada parcela, pero sí orientar acerca de la problemática geológica, geotécnica y de riesgos que una determinada área puede presentar, enfocando así el estudio en unas direcciones concretas.
La ubicación de los edificios objeto del presente estudio se sitúa en el área con condiciones desfavorables de cimentación (figura 7). Los condicionantes negativos de esta área derivan de la mínima capacidad portante de sus sedimentos –singularmente en el caso de la presencia de turba– y de su saturación en agua. En la actualidad requieren el empleo de técnicas especiales de cimentación (pilotes, micropilotes, muros pantalla, etc.) en la casi totalidad de los casos.
Además, la cartografía geotécnica de Gijón permite extraer información adicional sobre la tipología del subsuelo en el emplazamiento de los bloques. La misma ha sido confeccionada en base a la consulta de un elevado número de informes geotécnicos, una minuciosa labor de muestreo, recopilación e interpretación de muchos datos puntuales extraídos de pequeños afloramientos, trabajos superficiales (calicatas, zanjas, excavaciones, etc.) y de campañas de prospección del terreno, sobre todo, de la valoración de 1.114 sondeos mecánicos, con un total de 14.737 m lineales de perforación.
Debido a la gran cantidad de material e información gráfica disponible sobre el tema –algunos de cuyos datos se utilizan en los siguientes apartados–, no es posible abarcarla debidamente en el espacio del trabajo presente, por lo que aquí sólo se destacan algunas características que se describen en los siguientes párrafos.
Las importantes acumulaciones de sedimentos del dominio litoral –con espesores de hasta 25 m– están constituidas fundamentalmente por arenas, entre las que se intercalan gravas y, de manera irregular, niveles de turba.
A la baja capacidad portante hay que añadir el efecto negativo de su parcial saturación en agua, encontrándose los niveles freáticos muy próximos a la superficie topográfica, con oscilaciones de –2 a –4 m; este hecho significa un problema añadido de estabilidad y estanquidad en los casos de excavaciones para la construcción de edificaciones con plantas subterráneas.
Desde el punto de vista geotécnico, el conjunto de sedimentos litorales constituyen materiales detríticos, no cohesivos, de alta permeabilidad y saturados de agua dulce –salvo en el tramo más superficial–, de muy reducida capacidad portante y susceptibles de procesos de compresibilidad. En el caso de los niveles de turba cabe destacar su capacidad de hinchamiento y de consolidación, y su prácticamente nula competencia como elemento de soporte.
Finalmente, en la figura 8, se puede ver un corte geológico y geotécnico del terreno, correspondiente al entorno de la plazuela de San Miguel, donde se encuentran –a pocos metros– ubicados los edificios objeto del presente estudio.
Análisis y evaluación estructural
Al objeto de valorar la estabilidad de ambos edificios, inicialmente se determinan las tensiones sobre el terreno, para posteriormente calcular el empuje vertical a través del muro medianero de los bloques n.os 7 y 9, así como la presión de hundimiento bajo el edificio n.o 7, y finalmente formular una posible presión admisible con respecto al hundimiento a través de un coeficiente de seguridad.
Hay que tener en cuenta que las instrucciones vigentes en esta materia no contemplan ni reglas ni valores para el caso de evaluación de estructuras ya construidas, por lo que se dispone de especial libertad para emplear criterios propios bajo la estricta responsabilidad.
Determinación de las tensiones sobre el terreno
En la figura 9, se muestran los resultados de la determinación de las tensiones sobre el terreno, en una cota común a la superficie de influencia de ambas edificaciones.
En el bloque n.o 7 se ha considerado una sobrecarga de uso en viviendas de 200 kp/m2, en oficinas y planta baja 300 kp/m2 y en garaje 560 kp/m2. Mientras que en el bloque n.o 9, para las viviendas, plantas bajas y locales comerciales se ha considerado una sobrecarga de uso de 300 kp/m2 (según proyecto del mismo).
Asimismo, en el caso del bloque n.o 9 se ha realizado también el mismo cálculo, pero en el caso –exclusivamente– de que la carga sobre el terreno sea la producida únicamente por el esqueleto resistente, es decir, losa de cimentación, pilares, caja de escalera, vigas, forjados, y los propios de la azotea; al objeto de analizar la estabilidad geotecnicoestructural del bloque n.o 7 en esta fase de la construcción del bloque no 9.
En la representación gráfica de los resultados (figura 9) se indica la evolución de la tensión vertical sobre el terreno (p.p. más s.u.) a medida que se incrementa la sobrecarga de uso en ambos edificios. Además, para el bloque n.o 9 se representa también la tensión producida por el esqueleto resistente del mismo, la cual es constante e independiente –en este estado de la construcción– de la aplicación de sobrecarga de uso alguna, al objeto de compararla con la del bloque n.o 7.
Como se ha mencionado, el solar del bloque n.o 9 es un pentágono no regular, en el que cuatro de sus cinco lados limitan con las edificaciones colindantes; está ocupado en su totalidad por la losa de cimentación, y el único lado exento de la misma es el que da a la calle Celestino Junquera. Por tanto, a efectos de establecer una distribución de tensiones verticales bajo la losa de cimentación, al objeto de determinar las presiones en capas profundas, parece prudente considerar como único lado de la losa de cimentación exento o libre –en planta– el correspondiente a la fachada perteneciente a la citada calle.
El cálculo de la presión sobre el estrato de cota –3,00 m, se determina entonces, suponiendo una presión uniforme sobre el mismo, en la superficie o plano horizontal de influencia limitado por las intersecciones de planos verticales trazados por los lados del perímetro de la losa de cimentación, excepto en el lado de la losa que da a la calle Celestino Junquera, en que se toma la superficie limitada por su intersección, con un plano trazado por dicho lado de la citada losa, pero que forma en este caso un ángulo de 30º con la vertical (figura 10).
La longitud de la banda de proyección es de 9,10 m (figura 11) y la de su ancho (figura 10):
por lo que a la superficie en planta de losa de cimentación 143,53 m2 hay que añadir el área de una banda adicional de influencia de:
por lo tanto, a la cota de –3,00 m la superficie de influencia total es (figura 12):
La tensión vertical media sobre el terreno bajo el bloque n.o 9 es suma de tres componentes:
1. La presión transmitida por la pro-pia cimentación.
2. La presión del terreno anegado menos el empuje ascensional del agua.
3. La presión ejercida por el terreno seco.
Por lo que, respectivamente, suman
Los valores de ?’ y ? están definidos en el apartado 4.2; por tanto:
Para distintos valores de carga sobre el edificio n.o 9, las tensiones que se obtienen se muestran en la figura 9.
Cálculo del empuje vertical a través del muro medianero de los bloques números 7 y 9
El objeto de este apartado es determinar el empuje vertical sobre el muro medianero del bloque n.o 7, producido por la compresión del terreno bajo la losa del n.o 9, y transmitido a través de la superficie vertical comprendida por el tramo de muro común a ambos en cota por debajo de la losa de cimentación.
Según la tabla 9.1 de la norma NBE AE-88, referente a características empíricas de los terrenos, el mismo se clasifica como terreno natural, constituido por arena compacta y grava, con los siguientes parámetros característicos:
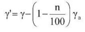
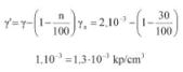
1. ? = 2,0 t/m3 = 2,10-3 kp/cm3: peso específico aparente del terreno seco.
2. ? = 30º: ángulo de rozamiento interno.
3. n = 30 %: índice de huecos.
Asimismo,
1. d = ? / 3 = 30º / 3 = 10º: ángulo de rozamiento entre terreno y muro.
2. ?H = 0,30: coef. de empuje activo horizontal.
3. ?V = 0,05: coef. de empuje activo vertical.
Estos últimos dos parámetros, para los valores de ? y d indicados, un ángulo de talud del terreno nulo y una inclinación del muro nula corresponden, según la tabla 9.2 de la norma NBE AE-88, los valores mostrados.
Como carga vertical q se adoptan los siguientes valores representativos de la tensión sobre el terreno bajo la losa de cimentación (cota de –1,2 m) del bloque n.o 9:
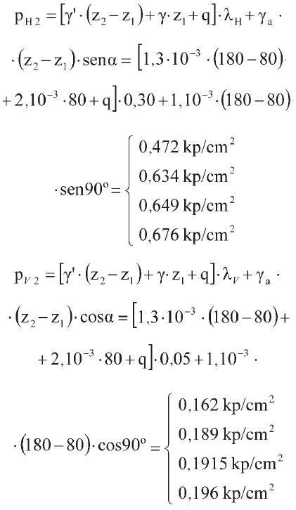
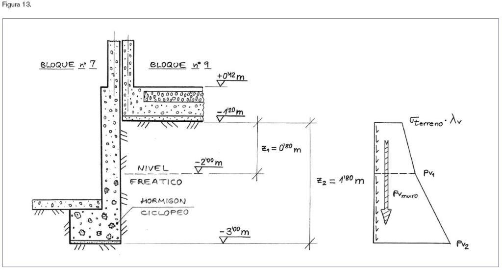
Las componentes horizontal pH 1 y vertical pV 1 de la presión sobre el muro, a la profundidad z1 (figura 13) del nivel freático –s/ zonación geotécnica: 0,8 m (-2,00 m)-, tienen las expresiones siguientes:
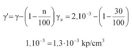
El peso específico virtual ?’ de un terreno anegado viene dado por la expresión
siendo:
? a = 1.000 kp/m3 = 1,10-3 kp/cm3: peso
específico del agua.
por tanto:
Las componentes horizontal pH 2 y vertical pV 2 de la presión sobre el muro, a una profundidad z2 por debajo del nivel freático (figura 13), son suma de cuatro componentes: la presión debida al terreno anegado (menos el empuje ascensional del agua), la presión ejercida por el terreno seco, la presión trasmitida por la losa de cimentación, y finalmente, la presión ejercida por el agua (dentro de la seguridad no se tiene en cuenta el índice de huecos).
Para la determinación de las mencionadas presiones, se utilizan las siguientes expresiones (figura 13):
siendo:
z1 = 0,8 m (-2,00 m): cota del nivel freá
tico (figura 13) s/ zonación geotécnica.
Al igual que en el caso anterior, como carga vertical q se adoptan los siguientes valores representativos de la tensión sobre el terreno bajo la losa de cimentación (cota de –1,2 m) del bloque n.o 9:
por tanto, para las presiones pH 2 y pV 2 resultan unos valores de:
La longitud de influencia del muro medianero correspondiente a los bloques n.os 7 y 9 es de 21,7 m. En el caso de que la carga ejercida desde el solar del bloque n.o 9 sea sólo la correspondiente al entramado resistente, la carga total transmitida al muro de cimentación del bloque n.o 7 es:
que equivale a una carga –colineal con la longitud de influencia del muro– uniformemente repartida de 1.499,5 kp/m.
Mientras, en el caso de que la carga ejercida desde el solar del bloque n.o 9 sea la correspondiente al p.p. + 65 % s.u., la carga total transmitida al muro de cimentación del bloque n.o 7 es:
que equivale a una carga –colineal con la longitud de influencia del muro– uniformemente repartida de 2.030,5 kp/m.
Como se puede apreciar, los valores resultantes no presentan una magnitud elevada en comparación con el resto de acciones verticales que solicitan la estructura del bloque n.o 7, aunque tam-poco son –ni mucho menos– despreciables.
Cálculo de la presión de hundimiento
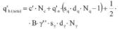
La presión efectiva neta de hundimiento de una cimentación directa en faja (indefinida en dirección perpendicular al ancho B de la zapata) se suele evaluar mediante la formulación propuesta por Terzaghi:
donde:
1. Nc, Nq, N? se denominan factores de capacidad de carga y dependen exclusivamente del ángulo de rozamiento interno efectivo del suelo.
1. c’ es la cohesión efectiva del terreno.
1. q’o es la tensión vertical efectiva debida a la sobrecarga total de tierras al nivel de la cimentación.
4. B es el ancho del cimiento.
5. ?’’ es el peso específico del suelo para calcular las tensiones efectivas por debajo del cimiento (en caso de terreno sin saturar o en caso de suelo saturado con presiones de agua hidrostáticas).
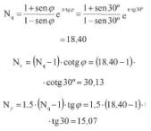
6. ? = 30º: ángulo de rozamiento interno efectivo.
Los tres términos de la ecuación anterior muestran tres contribuciones diferenciadas a la resistencia: el primer término es debido a la cohesión, el segundo al efecto de la sobrecarga de tierras sobre el plano de apoyo y el tercero al peso específico del suelo por debajo del cimiento. Evidentemente, esta ecuación puede expresarse en tensiones totales o efectivas, brutas o netas.
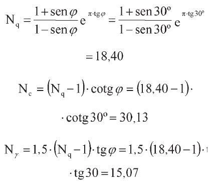
Con respecto a los factores de capacidad de carga, existen expresiones o ábacos que permiten su determinación directa, pudiendo emplearse con suficiente fiabilidad las siguientes:
La capacidad de carga de la infraestructura –tanto de las zapatas arriostradas como de las aisladas– se determina en condiciones drenadas.
Cuando la permeabilidad del suelo es suficientemente elevada como para que el exceso de presión intersticial genera-do por la aplicación de las cargas de la cimentación se disipe de forma casi simultánea con la construcción (caso de los suelos eminentemente granulares), el cálculo de la presión de hundimiento se realiza en tensiones efectivas. Este cálculo también es aplicable a los suelos de baja permeabilidad (arcillas) cuando se desee determinar la capacidad de carga una vez se haya alcanzado el equilibrio de presión intersticial y hayan concluido los procesos de consolidación.
A continuación, se indican los facto-res de corrección que se utilizan, para tener en cuenta la influencia de la profundidad de la cimentación y de la forma de la misma:
1. Influencia de la profundidad de la cimentación
En condiciones drenadas, los coeficientes a emplear para tener en cuenta la resistencia del terreno por encima del plano de cimentación pueden tomarse:
– Término Nc: dc (en arcillas).
– Término Nq: dq = 1 (se suele despreciar).
– Término N?: d? = 1 (no tiene influencia real).
2. Influencia de la forma de la cimentación
La presión de hundimiento de una zapata circular o cuadrada resulta mayor que la de una zapata corrida. Este hecho es bastante intuitivo, ya que cuando una zapata en faja (indefinida en una dirección) alcanza el hundimiento, la superficie de rotura es marcadamente bidimensional. Sin embargo, en una zapata cuadrada del mismo ancho B, la superficie de rotura resulta marcadamente tridimensional (la “cuña” de rotura se expande más allá de los límites geométricos de la zapata), es decir, las zapatas corridas movilizan la resistencia de un volumen menor de suelo por unidad de área del cimiento que las cimentaciones no indefinidas en una dirección.
Este efecto de aumento de resistencia en función de la forma se tiene en cuenta mediante unos factores de corrección sc, sq y s? , que pueden tomarse como:
para una zapata rectangular de dimensiones en planta B·L.
Las cuatro zapatas aisladas del bloque n.o 7 son cuadradas (de dimensiones en planta de 1,60·1,60 m2 y de 2,00·2,00 m2), por lo que el factor B/L adopta valor unidad.
1. c’ = 0: dado que se trata de un suelo granular, se supondrá que la cohesión efectiva es nula.
2. q’o = qo – u = Yap·D-Yw·hw
Siendo:
qo: presión vertical efectiva del terreno.
u: presión intersticial al nivel de la cimentación.
Yap= 2,0 t/m3 = 20 kN/m3: peso específico aparente del terreno.
D = 3 m: profundidad de la base de apoyo de la cimentación.
Yw = 1.000 kp/m3 = 10 kN/m3: peso específico del agua.
hw= 1 m: altura del nivel freático sobre la base de apoyo de la cimentación.
por tanto:
B = Bef m : ancho de la zapata (aislada).
En el caso del conjunto de la cimentación directa en faja del bloque n.o 7, es necesario determinar un ancho eficaz medio Bef m (figura 3).
?’’: peso específico necesario para calcular las tensiones efectivas por debajo del cimiento.
La presión efectiva neta de hundimiento será:
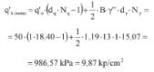
En el caso de las cuatro zapatas aisladas del edificio n.o 7, la situación más desfavorable –en cuanto a la presión efectiva neta de hundimiento– se da en las zapatas de 1,6·1,6 m2 de dimensión en planta (frente a las de 2,0·2,0 m2), ya que el último término de la ecuación de Terzaghi aumenta proporcionalmente con el ancho B de la zapata. Por tanto:
Para la zapata de 2,0·2,0 m2 el resultado es de 1.846,72 kPa (18,46 kp/cm2).
Como puede apreciarse –en el caso de zapatas aisladas–, la presión de hundimiento obtenida es elevada (próxima a los 2 MPa). Este efecto suele ser habitual en los suelos granulares, salvo en los muy flojos, y da lugar a que las presiones admisibles de trabajo se limiten fundamentalmente por la admisibilidad de los asientos de la estructura, más que por su seguridad frente al hundimiento.
Coeficiente de seguridad. Presión admisible con respecto al hundimiento
Para establecer una presión de cimentación suficientemente alejada del hundimiento se debe aplicar un factor de minoración a la tensión de hundimiento calculada. Dicho factor, o coeficiente de seguridad, se suele aplicar sobre la presión de hundimiento neta. Es decir, la parte que se minora es en realidad el incremento de tensión que sufre el terreno al nivel de cimentación elegido. Por lo tanto, la presión bruta admisible de una cimentación directa vendrá dada por la expresión:
En la práctica habitual, se suele adoptar un coeficiente de seguridad de F = 3 para condiciones permanentes.
En cálculos con drenaje es muy recomendable emplear tensiones efectivas y aplicar el coeficiente de seguridad sobre la tensión efectiva de hundimiento neta. Por tanto, la presión admisible efectiva bruta, en el caso de carga en faja, será:
y en el caso de zapatas aisladas:
Una presión así determinada no tiene por qué ser la finalmente seleccionada como admisible para la estructura; así, aunque cuente con suficiente seguridad frente al hundimiento, no incluye ninguna limitación especial frente a los asientos, de forma que la estructura podría deformarse en exceso, aunque no se hunda.
Análisis de las posibles causas
Los daños aparecidos en el edificio n.o 7 parecen estar relacionados –al menos en el tiempo– con la construcción del edificio colindante en el solar n.o 9. En efecto, la construcción del bloque anexo, con el consiguiente incremento de carga en el terreno, coincide en mayor o menor medida con la aparición de asientos diferenciales en el muro medianero –del bloque n.o 7– que separa a ambos. Existe simultaneidad en el tiempo en cuanto a la ejecución de trabajos y la aparición de daños, como una combinación de desplazamientos horizontales y verticales.
El edificio n.o 7 desde su construcción y durante más de tres décadas, tuvo como colindante (en el actual solar del n.o 9) una casa de sólo dos plantas (planta baja y primera), que por razones obvias transmitía al terreno cargas de muy baja entidad, las cuales ‘no ponían en apuros’ a la cimentación del muro de medianería de aquél.
A medida que el entramado resistente del actual bloque n.o 9 iba tomando altura, el edificio n.o 7 ya dio muestras visibles de la pérdida de su verticalidad, así como de su movimiento monolítico hacia el solar en construcción. Tanto fue así, que en su choque con el esqueleto anexo en ejecución, obligó a modificar las medidas previas de separación en planta de los pilares medianeros del mismo, desplazándolos un poco hacia dentro del solar en alguna planta (lamentablemente no se dispone de información gráfica de la misma). Esta discontinuidad en el eje vertical de los citados pilares se apreciaba visualmente sin esfuerzo, a pie de calle, cuando el entramado resistente estaba a la vista, sin cubrir por los muros medianeros y tabiques.
Una valoración cuantitativa de los movimientos que se manifiestan en asientos, desplazamientos horizontales y giros de la estructura de los edificios originados por fenómenos de este tipo es muy dificultosa, prácticamente imposible, dado el gran número de variables que intervienen y que se desconocen en magnitud.
Conclusiones
1. Las grietas de tabiquería y muros se deben a que la estructura no es muy rígida, y se deforma como consecuencia de los asientos diferenciales, pero fisurándose más los elementos que son de mayores dimensiones (fachadas, tabiques, etc.) y menos los elementos lineales (vigas, columnas, etc.).
2. Los asientos se deben al insuficiente dimensionamiento del conjunto de la cimentación del edificio n.o 7 para la tipología del subsuelo:
– Según los valores de presiones admisibles, indicados en la norma NBE AE88 (tabla 8.1 de la misma) para terrenos sin cohesión, arenosos finos de consolidación media (factor de corrección de 0,8) y una profundidad del nivel de apoyo de la cimentación mayor o igual a 3 m, la presión admisible a utilizar adopta la magnitud de:
3.2 kp/cm2·0.8 = 2,56 kp/cm2
Este valor ya resulta superado en el caso del edificio n.o 7, con sólo considerar las cargas verticales del peso propio y el 50 % de la sobrecarga de uso (figura 9):
nº 7: o.o.+50% s.u.?2.97>2.56 kp/cm2
p.p. + 100% s.u.?3.35>>2,56 kp/cm2
– Por otra parte, si además de considerar el valor medio de las cargas verticales del párrafo anterior se tiene en cuenta también el incremento de carga –en la zona de medianería– producida por el entramado resistente del n.o 9 (en la fase de construcción del mismo), la situación empeora (figura 9):
nº 7: o.o.+50% s.u.?2.97>2.97 kp/cm2
nº 9: entramado resistente ?1,18 kp/cm2
frente a 2,56 kp/cm2
– La situación anterior se vuelve aún más desfavorable si se considera –por ejemplo– en ambos edificios, un 65 % de la sobrecarga de uso más el peso propio correspondiente (figura 9):
nº 7: o.o.+65% s.u.?2.97>3.08 kp/cm2
nº 9: o.o.+65% s.u.?2.97>1.73 kp/cm2
frente a 2,56 kp/cm2
– Además, las tensiones bajo la losa del edificio n.o 9 son algo mayores que las del lado del muro de medianería del bloque n.o 7, debido al diseño en quiebro vertical de aquél.
Son así perfectamente explicables los asientos.
1. Las compresiones –se presume– son de tipo elástico (el comportamiento del suelo se considera aproximadamente elástico) y se irán estabilizando (las tensiones efectivas netas de hundimiento obtenidas en el apartado 4.3 son elevadas: 9,87, 18,11 y 18,46 kp/cm2), no hay así peligro de incrementos futuros importantes, pero conviene seguir midiendo asientos y desplomes para confirmar que sean cada vez menores los incrementos.
2. Continuando con el bloque n.o 9, llama también la atención que ya simple-mente para un valor medio (o superior) de la sobrecarga de uso, más el peso propio correspondiente, se sobrepasa de forma explícita la presión admisible indicada en su proyecto de 1,5 kp/cm2 (véase la figura 9).
3. Con un ángulo de propagación de 30º, el peso de cada edificio afecta a los colindantes no sólo en la medianería sino más allá, y aunque se alejen las columnas de la medianería no se evita esta influencia.
4. No se puede afirmar que el edificio n.o 7 se apoye en el n.o 9: el primero está inclinado con un desplome importante; su asiento se debe, en parte, a la posterior construcción del actual bloque n.o 9; la pérdida de la verticalidad del n.o 7 ha llegado a hacer que se toquen sus esquinas superiores, pero sin fuerza apreciable de contacto entre ellas. En este caso, hay que rechazar la hipótesis de que un edificio se apoye en el vecino y sea la causa de las grietas, pero se acepta la hipótesis de que se ha inclinado por sus asientos diferenciales.
5. El edificio n.o 7 puede seguir habitándose, y no se puede objetar que sus fisuras se deban al apoyo del bloque no 9 en él.
Medidas que se proponen
Es necesario controlar la actividad y magnitud de los asientos y su avance en el tiempo mediante nivelación de precisión en la base de los pilares. También es necesario medir el desplome del edificio y su evolución, y realizar la instrumentación de las grietas para seguimiento de su actividad.
El seguimiento de los movimientos determinará si en algún momento hubiera que realizar alguna intervención, al objeto de detener los asientos, con el fin de evitar daños estructurales que crea rían situaciones de riesgo, mediante el recalce del edificio con el sistema a determinar a partir de la investigación geotécnica, que en tal caso sería preceptivo realizar.
RESUMEN
Los estudios de patología de las edificaciones no están normalizados. En las escuelas técnicas se enseña cómo puede proyectarse y construirse una estructura de forma que su comportamiento sea correcto. Sin embargo, en muy pocas ocasiones se enseña a analizar estructuras que han fallado, por superar alguna de las condiciones de diseño para las que fueron concebidas. La propia normativa no cubre, o cubre sólo nominalmente, el campo de los estudios de patología y refuerzo. En el presente trabajo, se propone una metodología para analizar la estabilidad geotecnicoestructural en las edificaciones, frente al incremento de carga sobre el terreno –en el plano de apoyo de la cimentación– motivado por la construcción de edificaciones colindantes, mediante la determinación de tensiones verticales medias en el plano de apoyo de la infraestructura.
Asimismo, se pretende habilitar una línea de actuación en los estudios sobre patología geotecnicoestructural mediante la trazabilidad del análisis propuesto, frente a soluciones técnicas opacas en las que predomina un desconocimiento –por omisión u ocultación– de los fundamentos de cálculo que han alumbrado las conclusiones de un informe de patología geotecnicoestructural.







































